Tayya ist eine 16,55 m lange Nauta 54, die von Scott Kaufman entworfen und von Nauta Yachts gebaut wurde. Ihre Reise vom Mittelmeer bis zu den harten atlantischen Segeltörns zeigt, was diese Art von Yacht wirklich wert ist, wenn sie mit dem offenen Meer, starkem Wind und langem Wetter konfrontiert wird.

Ein Segelboot, das für schwere See ausgelegt ist

Die Nauta 54 gehört zu dieser Generation von eleganten Langfahrtseglern, die für weite, schwere und lange Fahrten konzipiert sind. Mit einer Verdrängung von 17,60 t und einem Tiefgang von 2,80 m hat die Tayya Proportionen, die die Steifigkeit des Tuches und die Kursstabilität in den Vordergrund stellen. Der dicke Rumpf, der den Standards der späten 1980er Jahre entspricht, nimmt die Belastungen ohne abrupte Reaktionen auf.

Diese Philosophie hat sich unter realen Bedingungen bewährt. Auf der Rückfahrt von den Azoren erlebte Tayya einen starken Wind mit Windstärke 8 am Wind. Das gesamte Deck wurde vom Bug bis zum Heck von der Brandung überrollt. Das Verdeck ist abgerissen, aber die Struktur zeigt keine Anzeichen von Schwäche. Das Boot fährt weiter, ohne Wassereinbruch oder größere Schäden. Eine solche Episode sagt viel mehr über ein Segelboot aus als jedes Datenblatt.

Von der Segelschule zur großen Atlantik-Kreuzfahrt

Tayyas erstes Leben spielt sich als Segelschulschiff ab. Dann geht sie in die Hände eines sardischen Eigners über, der schließlich recht wenig segelt und das Boot in einem insgesamt gesunden Zustand hinterlässt. Im Jahr 2020, nach Ablauf der COVID-Periode, kaufen zwei Freunde die Nauta 54 und bringen sie nach Douarnenez zurück. Das Programm ändert sich deutlich. Das Boot fährt in den Atlantik, zu den Kanarischen Inseln und dann zu den Azoren. Bei diesen Segeltörns zeigte sich, dass die Nauta Nauta unter Segeln sehr ausgeglichen ist und einen gleichmäßigen und hohen Durchschnitt beim Kreuzen halten kann, ohne die Mannschaft übermäßig zu belasten.

Auf der Rückfahrt von den Azoren entdeckte der zukünftige Besitzer Tayya. Der Komfort an Bord ist unter diesen Bedingungen zwar spartanisch, aber das Gefühl der Sicherheit dominiert, ein Punkt, der für einen langfristig engagierten Segler oft entscheidend ist.

Ein Decksplan und eine Takelage, die für das offene Meer konzipiert sind

Das Teakdeck, das 2013 neu gestaltet wurde, bietet einen freien und sicheren Verkehr. Die beiden Cockpits bieten der Crew angemessenen Schutz und verringern die Ermüdung bei langen Schichten. Der 2021 neu lackierte Aluminiummast mit dreistufigen Auslegern ermöglicht es, eine große Segelfläche von bis zu 330 m² auf dem Vorwindkurs zu tragen und dabei die Kräfte gleichmäßig zu verteilen. Das Segelboot ist mit einer Genua ausgestattet, kann aber auch als Kutter mit Yankee und Transette getakelt werden.

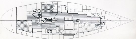
Eine Innenausstattung, die für lange Segeltörns gedacht ist

Im Inneren bietet die Tayya vier Kabinen für acht Personen, was für einen Hochseekreuzer mit Crew eine gute Lösung ist. Die Einrichtung besteht aus Teakholz und hat eine schöne, helle Farbe. Der Salon bietet Platz für sechs bis acht Personen, ohne dass es eng wird, und die Küche in Längsrichtung bleibt auch auf See funktional.

Die Lederpolsterung und die Matratzen wurden 2021 erneuert. Der gut abgetrennte Navigationsplatz umfasst eine modernisierte Elektronik mit Geräten von B&G, Raymarine und einem 2022 installierten AIS-VHF. Zwei Plotter, einer für das Steuer und ein zweiter für die Besatzung, sorgen für Sicherheit beim Navigieren.

Ein technisch betreutes Segelboot zwischen Refit und tatsächlicher Nutzung

Seit ihrer Ankunft in Douarnenez hat Tayya von gezielten Updates profitiert. Das elektrische Bugstrahlruder Vetus, der Ankerwindenmotor und die Webasto-Heizung wurden 2022 eingebaut oder erneuert. Der 90 PS starke Volvo-Motor bietet eine geschätzte Reichweite von 500 bis 600 Seemeilen mit 600 L Diesel. Die Frischwasserkapazität beträgt bis zu 420 L, ergänzt durch einen 70 L Wassererhitzer.

Heute liegt Tayya in Douarnenez vor Anker. Sein Eigner musste sich aufgrund einer Krankheit schweren Herzens von ihm trennen. Das Boot bleibt jedoch dem treu, was es immer war: ein Segelboot, das zum Segeln entworfen wurde, das eher für die raue See und die gesammelten Meilen als für stille Marinas gemacht ist. Es ist in perfektem Zustand und bereit, mit einer neuen Crew wieder in See zu stechen.

/ 











